365上市公司(英国)集团-官方网站
首页
后勤概况
中心介绍
领导机构
综合服务部
饮食服务部
物业管理部
学生公寓管理部
采购配送部
通知公告
工作动态
服务指南
常见问题
下载中心
政策法规
党建之窗
工作流程
项目前期管理
项目实施管理
修缮工程管理
一键报修
能源公示
学校主页
项目概况
在建项目
竣工项目
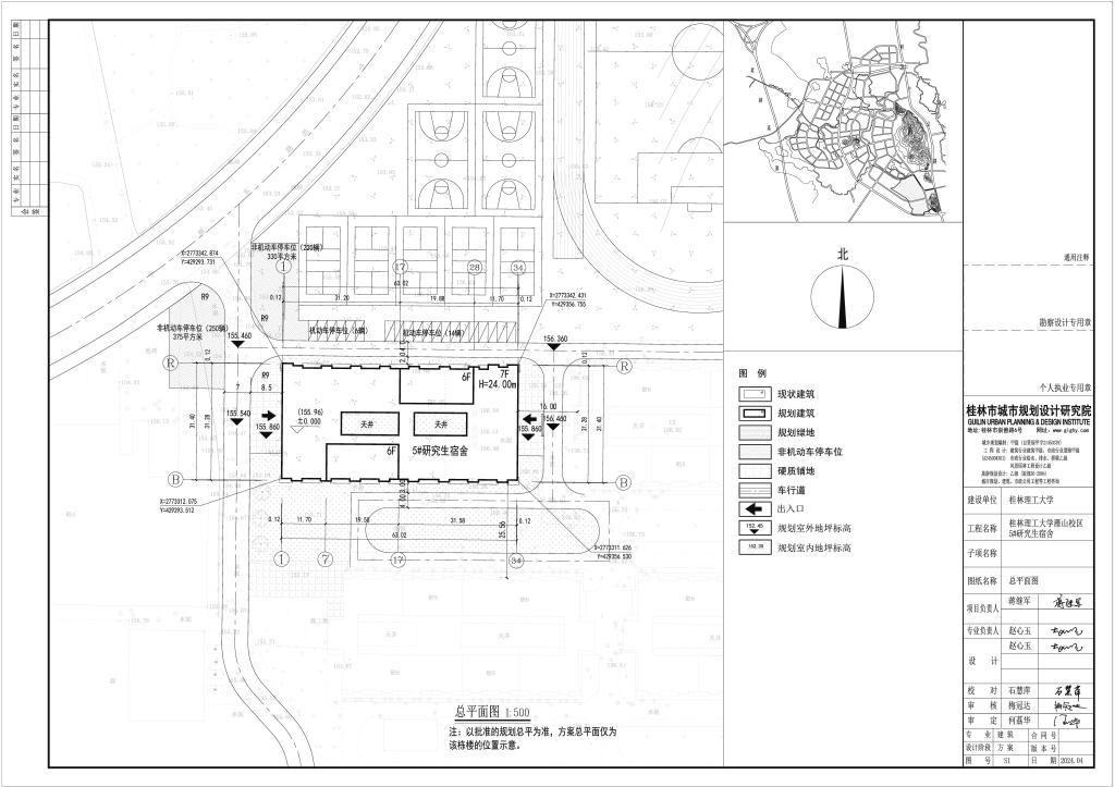
雁山校区5#研究生宿舍
2026年01月14日
(浏览量:
)
规划总平面
建筑外立面
鸟瞰图
上一条:雁山校区24#智慧中心
已是尾条
【
关闭窗口
】